Réf. 20480406
903 Ch. du Lac-Renaud J8B 2T5
259 900 $
3 chambres 1 salle de bain 8 pièces
Description
Ici, le temps ralentit. Cette coquette maison familiale des années 40 dans les Laurentides invite à la douceur et au ressourcement. Établie sur deux étages, elle repose sur un terrain intime d'environ 18 000 pi², bercé par le murmure d'un ruisseau et entouré d'un paysage naturellement enchanteur. Chaque saison y apporte sa magie, entre lumière, calme et nature. À quelques minutes seulement des pentes de ski de Saint-Adèle, elle offre l'équilibre parfait entre évasion et plaisir de vivre, un lieu où créer des souvenirs et se sentir vraiment chez soi.
Addenda
Ici, le temps ralentit naturellement. Cette coquette maison
familiale des Laurentides dégage une atmosphère douce et
rassurante, façonnée par les années et entretenue avec soin
au fil du temps. Érigée sur deux étages, elle repose sur un
terrain intime d'un peu plus de 18 000 pi², bordé par un
ruisseau qui accompagne le quotidien de son murmure
apaisant.
Le paysage est enchanteur, en toute saison, et le voisinage
-- charmant et respectueux -- contribue à ce sentiment de
bien-être rare. On s'y sent rapidement chez soi. La maison
offre une belle flexibilité : l'étage pourrait facilement
être repensé afin d'aménager deux plus grande chambres et
aissi agrandir la salle d'eau, selon vos besoins et votre
style de vie.
Chaque détail reflète une propriété aimée, soignée et
habitée avec coeur. À quelques minutes des pentes de ski de
Saint-Adèle, elle marie parfaitement la tranquillité de la
nature, le plaisir des activités de plein air et la
proximité des services. Un lieu sincère, accueillant, où
l'on s'installe pour créer des souvenirs et savourer
pleinement la vie dans les Laurentides.
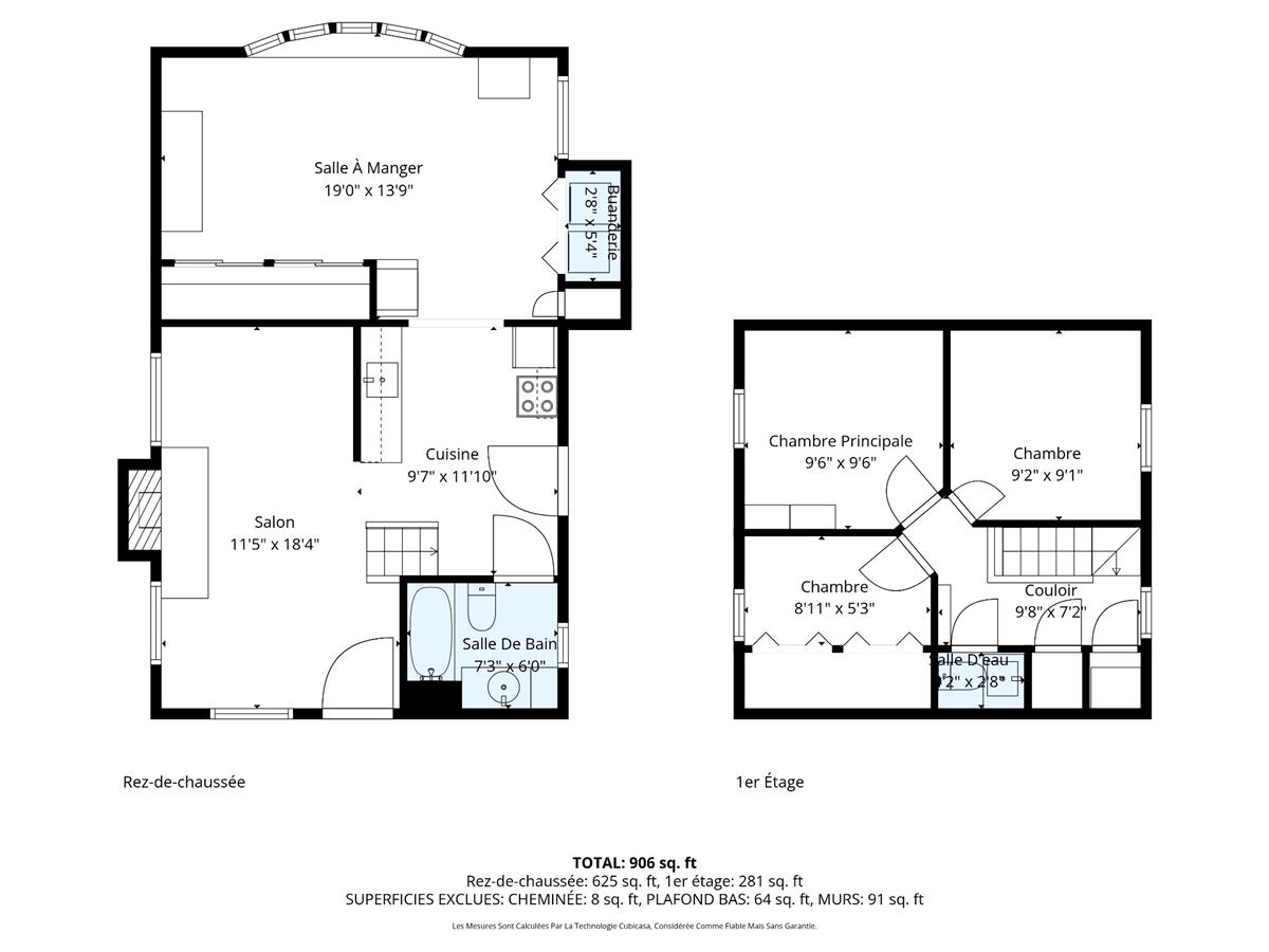
Pièces
| Pièce | Niveau | Revêtement | Dimensions |
|---|---|---|---|
| Cuisine | Rez-de-chaussée | Linoléum | 115 × 142 po |
| Salle à manger | Rez-de-chaussée | Plancher flottant | 165 × 228 po |
| Salon | Rez-de-chaussée | Plancher flottant | 137 × 220 po |
| Salle de lavage | Rez-de-chaussée | Plancher flottant | 32 × 64 po |
| Chambre à coucher principale | Étage | Tapis | 114 × 114 po |
| Chambre à coucher | Étage | Tapis | 109 × 110 po |
| Chambre à coucher | Étage | Tapis | 63 × 107 po |
| Salle d'eau | Étage | Céramique | 32 × 50 po |
Bâtiment et intérieur
- Type de bâtiment
- Détaché (Isolé)
- Année de construction
- 1940
- Évaluation (bâtiment)
- 172 200 $ (2026)
Terrain et extérieur
- Superficie du terrain
- 18 692 pi²
- Évaluation (terrain)
- 29 900 $ (2026)
Autres caractéristiques
- Abri d'auto Attaché
- Armoires Bois
- Mode de chauffage Air soufflé, Plinthes électriques
- Approvisionnement en eau Puits artésien
- Énergie pour le chauffage Électricité
- Fondation Béton coulé
- Foyers-poêles Foyer au bois
- Revêtements Vinyle
- Proximité Autoroute/Voie rapide, Golf, École primaire, Ski alpin, École secondaire, Ski de fond
- Sous-sol Bas (moins de 6 pieds), Vide sanitaire
- Stationnement (total) Abri d'auto, Extérieur
- Système d'égouts Champ d'épuration, Fosse septique
- Toiture Bardeaux d'asphalte
- Topographie Plat
- Zonage Résidentiel
Détails financiers
- Prix de vente
- 259 900 $
- Évaluation municipale
- 202 100 $ (2026)
- Taxes scolaires
- 123 $ (2026) /an
- Taxes municipales
- 1 403 $ (2026) /an
Quartier
- Région
- Laurentides
- Ville
- Sainte-Adèle
- Secteur / district
- Sainte-Adèle
Demande d'information
Vous souhaitez plus d'informations sur cette propriété ? Remplissez le formulaire ci-dessous et nous vous recontacterons rapidement.